Москва, Каширское ш., владение 63/1, (дом №7)
+7 (495) 999-85-51, e-mail: msk@nplotnik.ru
МО, Котельники, Новорязанское ш., дом 5с36
+7 (495) 532-66-08, e-mail: real@nplotnik.ru
Санкт-Петербург, ТРЦ "Мега Дыбенко", дом 25
+7 (812) 927-89-11, e-mail: mega@nplotnik.ru
Производство: Новгородская область, Пестово
+7 (963) 366-32-44, e-mail: info@nplotnik.ru

Фотоотчеты
← Вернуться к списку всех фотоотчетов

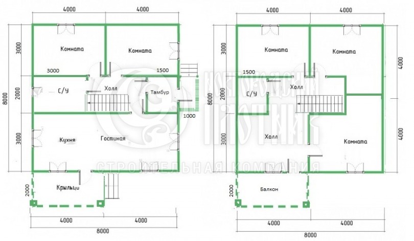
Каркасный полутораэтажный дом 8х8м с балконом и крыльцом
Московская область Домодедовский район
В январе 2020г. завершилось строительство дома на основе проекта Д-34. В планировку были внесены изменения: убрали крыльцо и балкон, добавили выносной балкон с крыльцом и второе крыльцо. Каркас стен 150мм снаружи обшит ОСБ 12мм и сайдингом (сайдинг предоставил заказчик), внутри стены обшиты вагонкой. Окна ПВХ выполнены под заказ. Кровля металлочерепица.

Каталог типовых проектов

Каркасные и
брусовые дома
101 проект →
Бани из
проф. бруса
27 проект →
Отправить свой проект
на расчет стоимости
строительства
© 2008-2025 СК «Новгородский Плотник»
Вся представленная на сайте информация носит информационный характер и не является публичной офертой,
определяемой положениями Статьи 437 (2) Гражданского кодекса Российской Федерации
Офисы продаж:
Адреса, телефоны, e-mail
Мы в соц.сетях

Сделать заказ / Задать вопрос

ЗАКРЫТА - Сделать заказ / Задать вопрос (бани)

Заказать строительство по этому проекту или задать вопрос по нему Вы можете по телефону +7 (963) 366-32-44 или заполнив форму справа. Заполнение этой формы Вас ни к чему не обязывает, поэтому пишите по любым возникшим вопросам. 

Так же мы готовы сами перезвонить Вам, оставьте свой номер телефона, указав его в форме заказа.

Если у Вас есть свой проект или чертеж, мы готовы сделать бесплатный расчет стоимости его строительства в нашей компании. Перейдите на эту страницу и укажите всё необходимое для расчета.

Заказать звонок

ЗАКРЫТА - Задать вопрос в компанию

ЗАКРЫТА - Задать вопрос в компанию

Заказать строительство по этому проекту или задать вопрос по нему Вы можете по телефону +7 (963) 366-32-44 или заполнив форму справа. Заполнение этой формы Вас ни к чему не обязывает, поэтому пишите по любым возникшим вопросам. 

Так же мы готовы сами перезвонить Вам, оставьте свой номер телефона, указав его в форме заказа.

Если у Вас есть свой проект или чертеж, мы готовы сделать бесплатный расчет стоимости его строительства в нашей компании. Перейдите на эту страницу и укажите всё необходимое для расчета.