Москва, Каширское ш., владение 63/1, (дом №7)
+7 (495) 999-85-51, e-mail: msk@nplotnik.ru
МО, Котельники, Новорязанское ш., дом 5с36
+7 (495) 532-66-08, e-mail: real@nplotnik.ru
Санкт-Петербург, ТРЦ "Мега Дыбенко", дом 25
+7 (812) 927-89-11, e-mail: mega@nplotnik.ru
Производство: Новгородская область, Пестово
+7 (963) 366-32-44, e-mail: info@nplotnik.ru

Готовая баня по этому проекту

Фотоотчеты по этому проекту

05.04.2017
Нижегородская область Володарский район
21.10.2016
Владимирская область Киржачский район
30.09.2016
Владимирская область Александровский район
07.02.2016
Смоленская область, г.Десногорск

Описание комплектаций

Нажимайте на вкладки для переключения на нужную комплектацию
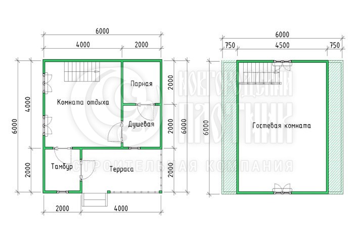
Каркас с толщиной утеплителя 150 мм.
2 225 000 руб.
ОБВЯЗКА Строганый брус 145×145мм камерной сушки;
ПОЛОВЫЕ ЛАГИ Строганый брус 95×145мм через через 58-59см камерной сушки; межэтажное перекрытие — сдвоенная строганая доска камерной сушки 45×145мм
ПОЛЫ
Двойные: черновой пол 1-го этажа — обрезная доска 20мм естественной влажности, чистовой — шпунтованная сухая половая доска 36мм; утепление — каменная вата Роквул толщиной 150мм с пароизоляцией (внутри) и ветрозащитой (снаружи);
СТЕНЫ 1-ГО ЭТАЖА и ФРОНТОНЫ
Стены каркаса, ригеля, укосины, стойки — СТРОГАНАЯ ДОСКА КАМЕРНОЙ СУШКИ 45×145мм с шагом 58-59см обиваются снаружи по контробрешетке 25×45мм (вентилируемый фасад) и внутри по стойкам вагонкой камерной сушки (толщина вагонки 16мм). Утепление — каменная вата, плиты ROCKWOOL толщиной 150мм с пароизоляцией (внутри) и ветрозащитой (снаружи);
ПЕРЕГОРОДКИ 1-ГО ЭТАЖА и МАНСАРДЫ СТРОГАНАЯ ДОСКА КАМЕРНОЙ СУШКИ 45×95мм с шагом 58-59см обшиваются вагонкой камерной сушки (толщина вагонки 16мм), без утеплителя
ПОТОЛОК
Подшивается сухой вагонкой, толщина 16мм; высота потолка первого этажа и мансарды 2,15 (+/-5см); утепление — каменная вата Роквул толщиной 150мм, с пароизоляцией (внутри) и ветрозащитой (снаружи);
ОКНА ПВХ двухкамерные, с фурнитурой; в парной — деревянная отдушина 30×30см;
ДВЕРИ Филенчатые, в парном отделении клиновая; без фурнитуры; входная — металлическая Эконом
СТРОПИЛА Строганая доска камерной сушки 45×145мм, обрешетка выполняется из сухой строганой доски 25мм (через 20-40см) + контробрешетка 45×45 (вентилируемый зазор для конденсата);
КРОВЛЯ Ондулин (коричневый, бардовый, зеленый) + ветровлагозащитная мембрана Изоспан АМ . Во фронтонах устанавливаются вентиляционные решетки; Поднебесники 50см.
ОТДЕЛКА ПАРНОГО ОТДЕЛЕНИЯ Стены и потолок обшиваются осиновой вагонкой, двухярусные полки (полок осиновый), теплоизоляция (фольга);
МОЕЧНОЕ ОТДЕЛЕНИЕ Душевой поддон с выводом слива наружу (гофрошланг);
ЛЕСТНИЦА Деревянная, с перилами и резными балясинами; тетива из бруса 90×140мм, ступени из половой доски 36мм;
ДОСТАВКА до 500км включена Свыше 500км перепробег оплачивается — 150 руб. за 1км;
Профилированный брус 140×140 мм.
2 324 000 руб.
ОБВЯЗКА двойная Нестроганный брус 150×150мм камерной сушки;
ПОЛОВЫЕ ЛАГИ Нестроганный брус 100×150мм камерной сушки через через 58-59см; межэтажное перекрытие — сдвоенная доска 45×145мм
ПОЛЫ
Двойные: черновой пол 1-го этажа — обрезная доска 20мм камерной сушки, чистовой — шпунтованная сухая половая доска 36мм; утепление — каменная вата Роквул толщиной 150мм с пароизоляцией (внутри) и ветрозащитой (снаружи);
СТЕНЫ 1-ГО ЭТАЖА Строганный профилированный брус 140×140мм камерной сушки на льноджутовом полотне; профиль на выбор «полуовал»/ «прямой»;
ПЕРЕГОРОДКИ 1-ГО ЭТАЖА Строганный профилированный брус 90×140мм (профиль «прямой») камерной сушки;
МАНСАРДА
Каркас, стойки строганая доска 45×145мм/перегородки 45×95мм с шагом 58-59см камерной сушки, стены и перегородки обшиваются сухой вагонкой, толщина 16мм; утепление стен и потолка — каменная вата Роквул толщиной 150мм, с паро-, гидроизоляцией;
ПОТОЛОК
Подшивается сухой вагонкой, толщина 16мм; высота потолка первого этажа и мансарды 2,15(+/-5см); утепление — каменная вата Роквул толщиной 150мм, с пароизоляцией (внутри) и ветрозащитой (снаружи);
ОКНА ПВХ двухкамерные; с фурнитурой; в парной — деревянная отдушина 30×30см;
ДВЕРИ Филенчатые, в парном отделении клиновая; без фурнитуры; входная — металлическая Эконом
СТРОПИЛА
Строганая доска 45×145мм камерной сушки, обрешетка выполняется из сухой строганой доски 25мм камерной сушки (через 20-40см) + контробрешетка 50×50 (вентилируемый зазор для конденсата);
КРОВЛЯ Ондулин (коричневый, бардовый, зеленый) + ветровлагозащитная мембрана Изоспан АМ . Во фронтонах устанавливаются вентиляционные решетки;
ОТДЕЛКА ПАРНОГО ОТДЕЛЕНИЯ Стены и потолок обшиваются осиновой вагонкой, двухярусные полки (полок осиновый), теплоизоляция (фольга);
МОЕЧНОЕ ОТДЕЛЕНИЕ Душевой поддон с выводом слива наружу (гофрошланг);
ЛЕСТНИЦА Деревянная, с перилами и точеными балясинами; тетива из бруса 90×140мм, ступени из половой доски 36мм;
ДОСТАВКА до 500км включена Свыше 500км перепробег оплачивается — 150 руб. за 1км;

Дополнительные опции для этого проекта

Указанные ниже цены действуют только для текущего проекта
Аренда
бензогенератора
+ 15 000 руб.
Водосточная
система
+ 48 000 руб.
Замена кровли
на металлочерепицу
+ 108 000 руб.
Сборка на
деревянные нагеля
+ 32 000 руб.
Бытовка для
проживания бригады
+ 30 000 руб.
Установка
снегозадержателей
+ 58 000 руб.
Оставить заявку на строительство
Или отправить свой проект/эскиз
на бесплатный расчет стоимости строительства

Каталог типовых проектов

Каркасные и
брусовые дома
101 проект →
Бани из
проф. бруса
27 проект →
Отправить свой проект
на расчет стоимости
строительства
© 2008-2025 СК «Новгородский Плотник»
Вся представленная на сайте информация носит информационный характер и не является публичной офертой,
определяемой положениями Статьи 437 (2) Гражданского кодекса Российской Федерации
Офисы продаж:
Адреса, телефоны, e-mail
Мы в соц.сетях

Сделать заказ / Задать вопрос

ЗАКРЫТА - Сделать заказ / Задать вопрос (бани)

Заказать строительство по этому проекту или задать вопрос по нему Вы можете по телефону +7 (963) 366-32-44 или заполнив форму справа. Заполнение этой формы Вас ни к чему не обязывает, поэтому пишите по любым возникшим вопросам. 

Так же мы готовы сами перезвонить Вам, оставьте свой номер телефона, указав его в форме заказа.

Если у Вас есть свой проект или чертеж, мы готовы сделать бесплатный расчет стоимости его строительства в нашей компании. Перейдите на эту страницу и укажите всё необходимое для расчета.

Заказать звонок

ЗАКРЫТА - Задать вопрос в компанию

ЗАКРЫТА - Задать вопрос в компанию

Заказать строительство по этому проекту или задать вопрос по нему Вы можете по телефону +7 (963) 366-32-44 или заполнив форму справа. Заполнение этой формы Вас ни к чему не обязывает, поэтому пишите по любым возникшим вопросам. 

Так же мы готовы сами перезвонить Вам, оставьте свой номер телефона, указав его в форме заказа.

Если у Вас есть свой проект или чертеж, мы готовы сделать бесплатный расчет стоимости его строительства в нашей компании. Перейдите на эту страницу и укажите всё необходимое для расчета.